Hoek van Holland, Bouwnummer 4

 € 1.115.000
      
Hoek van Holland, <span> Hoek van Holland, <span> OGA Makelaars

Te koop: Résidence Cruquius – Bouwnummer 4

Wonen op een unieke locatie met uitzicht op het water? Dat kan in Résidence Cruquius! Dit prachtige, kleinschalige appartementencomplex is gelegen nabij de Berghaven in Hoek van Holland en biedt een fenomenaal uitzicht over de Nieuwe Waterweg en de Emmaboulevard.

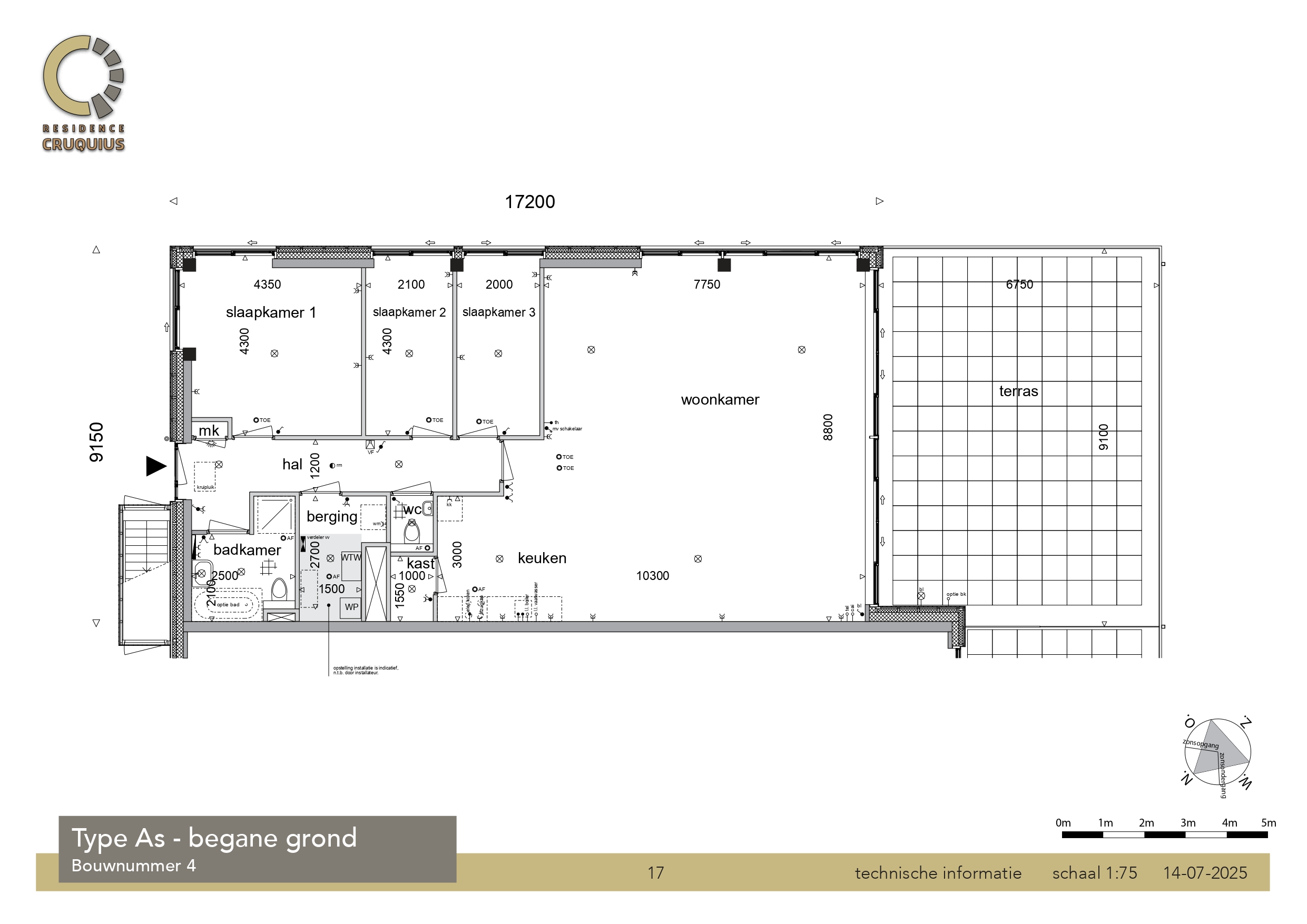
Bouwnummer 4 is een royaal en modern appartement met drie comfortabele slaapkamers, ideaal voor gezinnen, thuiswerkers of wie extra ruimte wenst. De woning kenmerkt zich door een lichte en ruime indeling, mede dankzij de grote raampartijen die zorgen voor een prachtige natuurlijke lichtinval.

Een absoluut hoogtepunt is het ruime zonneterras, waar u de hele dag kunt genieten van het uitzicht op het water en de voorbijvarende schepen. Hier ervaart u rust, ruimte en een unieke woonbeleving.

Résidence Cruquius bestaat uit slechts 10 exclusieve appartementen, verdeeld over drie verdiepingen. Het gebouw is ontworpen met oog voor comfort en duurzaamheid. Zo is het volledig gasvrij en voorzien van een warmtepomp, vloerverwarming én koeling in de zomer. Daarnaast dragen zonnepanelen bij aan energiezuinig wonen.

Bij het appartement hoort een eigen parkeerplaats op het afgesloten terrein, dat eenvoudig te openen is via uw mobiele telefoon. Ook beschikt u over een praktische, afgesloten fietsenberging. De fraai aangelegde binnentuin zorgt voor een groene en rustige woonomgeving.

De ligging is ideaal: op korte afstand van het centrum van Hoek van Holland, met diverse winkels, horecagelegenheden en het metrostation binnen handbereik. Daarnaast bent u met de fiets zo op het strand, waar u kunt genieten van zee, strandtenten en watersportmogelijkheden.

Bijzonderheden:

  • Gelegen op toplocatie met uitzicht op de Nieuwe Waterweg en/of Berghaven
  • Drie slaapkamers
  • Royaal zonneterras
  • Gasvrij wonen met warmtepomp en vloerverwarming (met koeling)
  • Voorzien van zonnepanelen
  • Eigen parkeerplaats op afgesloten terrein
  • Afgesloten fietsenberging
  • Nabij centrum, metro en strand

Kortom: bouwnummer 4 in Résidence Cruquius biedt luxe, comfort en een unieke woonlocatie aan het water. Een heerlijke plek om thuis te komen!

Aan deze aanbiedingstekst kunnen geen rechten worden ontleend.